2BHK RESIDENTIAL PROJECT (T.Y.)
EXISTING LAYOUT :
CIVIL CHANGES LAYOUT :
FURNITURE LAYOUT :
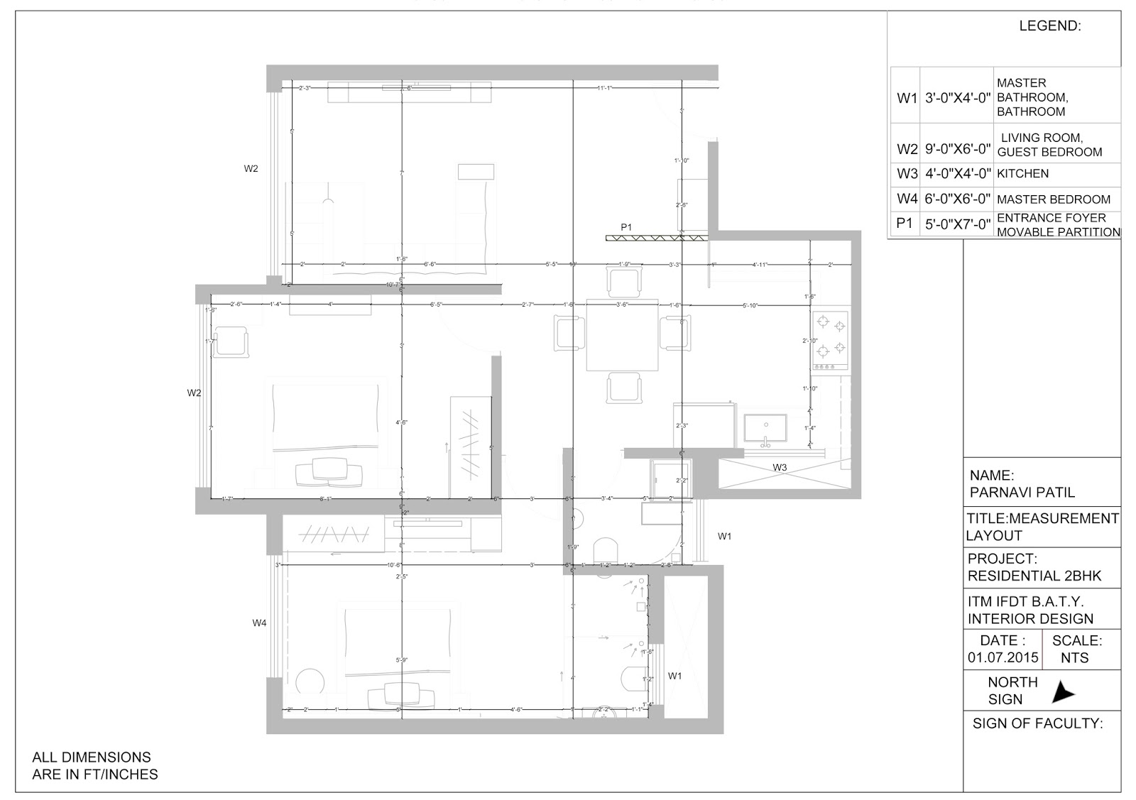
FURNITURE WITH DIMENSIONS :
FLOORING LAYOUT :
FALSE CEILING 1 :
FALSE CEILING 2 :
ELECTRICAL LAYOUT 1 :
From MDB to all SB
ELECTRICAL LAYOUT 2
HVAC LAYOUT :
PLUMBING LAYOUT :
FIRE SAFETY LAYOUT :
FIRE EXIT LAYOUT :
3D VIEW
MATERIAL BOARD :
CONCEPT SHEET :
















No comments:
Post a Comment